Some projects become more than just design work. They become part of a family’s story. This San Anselmo home is one of those special projects. Over the past six years, Studio SQUIRE has partnered with this wonderful family through multiple renovations and witnessed meaningful milestones along the way, including new babies, new pets, graduations, and many of the everyday moments that make a house feel like home. As their family grew, so did the need for space. Together, we thoughtfully reimagined the home to maximize every square inch so it functions beautifully for the way this busy family lives today while supporting the life they continue to build within its walls.
Our collaboration began upstairs, where we renovated the kitchen, bathroom, living room, and fireplace to create a more functional and inviting heart of the home. We also transformed the home’s once-unusable front deck into the ultimate gathering space, complete with an outdoor kitchen, dining area, and two lounge zones, perfect for entertaining and family time. A smaller back deck was refreshed as well, creating multiple outdoor areas for relaxing and connecting.
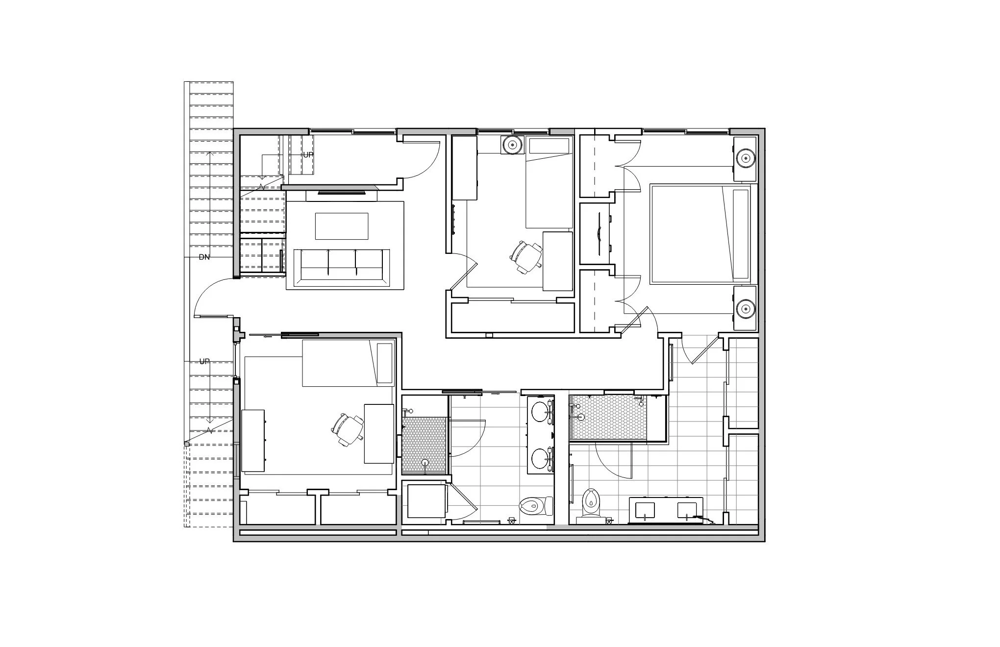
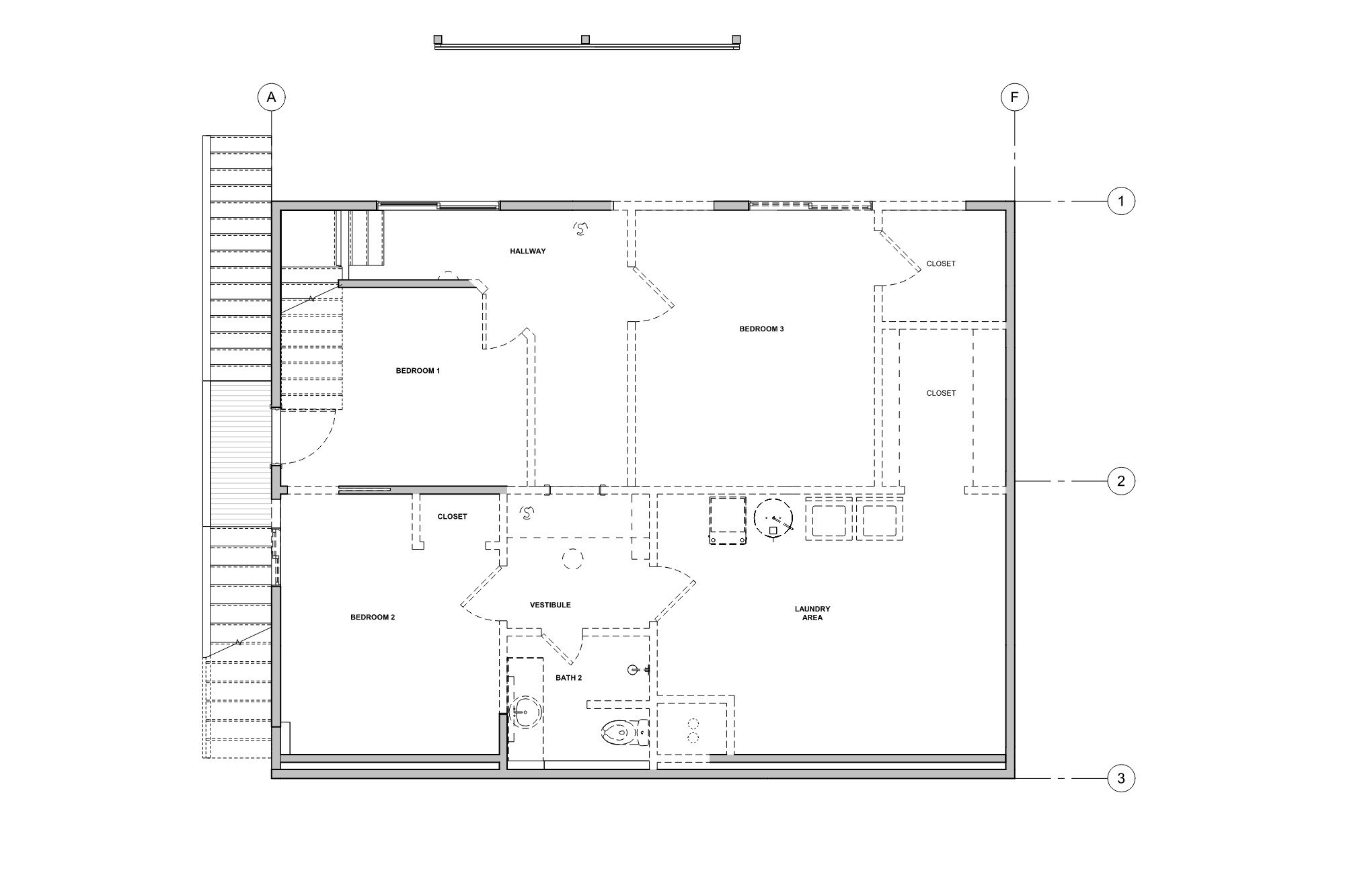
Last year, we turned our attention to the downstairs level, which was one of the biggest challenges of all. We embarked on a full renovation of the lower level with one clear goal: Make every square foot work for a busy family of six.
Reimagining the Layout
The existing downstairs layout wasn’t serving the family’s needs. The bedrooms were small, the ceiling were low, there were poorly planned HVAC ducts and lowered ceiling soffits, foundation elements were exposed, and there was a large amount of unconditioned space that could be transformed to make this level both beautiful and functional. Our team reconfigured the entire level to improve flow, functionality, and storage while making the space feel larger and more inviting.
BEFORE
AFTER
A room to grow with them
Children’s rooms should evolve just as quickly as they do. In this transformation, we reimagined the space to support both play and rest, creating a room that feels functional today while allowing for flexibility in the years ahead. Thoughtful layout changes, improved storage, and a cohesive design palette turned a once cramped bedroom into a space that feels open, organized, and full of possibility.
BEFORE
AFTER
Creating a Generous Primary Suite
We also saw an opportunity to add an entire primary suite to the home by incorporating previously unused, unconditioned space. The result is a spacious retreat that feels both private and luxurious.
The crown jewel of the primary suite is a spa-like bathroom featuring a steam shower, giving the homeowners a place to relax and recharge at the end of a busy day. Soft, light finishes were selected throughout the downstairs level to help the space feel bright, airy, and welcoming despite being partially below grade.
BEFORE
AFTER
A Flexible Family Hangout Space
In addition to the primary suite, we designed a small den where the kids can gather to watch TV, play games, or spend time together with friends. The sofa doubles as a sleeper sofa, providing extra beds for sleepovers, because in a home with three kids, sleepovers are practically a weekly event.
This flexible space ensures that the downstairs level works just as well for everyday family life as it does for hosting friends and extended family. We maximized every inch of storage space and built shelving in the void space beneath the stairs to store games and toys in this small den.
BEFORE
AFTER
A Home That Works Hard for the People Who Live There
The finished downstairs renovation is a perfect example of how thoughtful design can completely transform the livability of a home. By rethinking the layout, maximizing storage, and selecting finishes that enhance light and openness, we created a space that is both beautiful and highly functional.
Most importantly, it works for the way this family lives today and will continue to support them as they grow. At Studio SQUIRE, we love helping families rethink their homes to maximize square footage, storage, and everyday livability. In the Bay Area, this seems to be a common need. Real estate is expensive and often homes can be very small and dated upon purchase. With some creativity and design know-how, these spaces can be re-imagined to not only be beautiful, but highly functional for the people who live there.
Planning a Marin or Bay Area Home Renovation?
At Studio SQUIRE, we specialize in Bay Area interior renovations, including:
Whole-home renovations
Kitchen remodels
Bathroom renovations
Custom cabinetry and built-ins
Fireplace renovations
Space planning to maximize square footage
Family-friendly design for busy households
As a Marin interior designer, we intentionally take on projects within Marin County and the San Francisco Bay Area so we can stay deeply involved in the construction process and ensure every detail is executed beautifully.
If your home needs to be thoughtfully reconfigured to maximize square footage, storage, and livability, we’d love to help!
We currently have availability for 1–2 renovation projects starting this summer.
Reach out to Studio SQUIRE to start planning your renovation and create a home you truly love living in.



